Olgiate Olona AMPIO TRILOCALE CON 87 Mq DI TERRAZZI

OLGIATE OLONA - ZONA BUON GESU

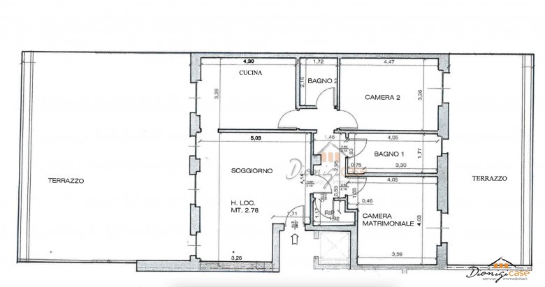
In zona ben servita, a breve distanza dalla stazione Ferrovie Nord di Castellanza e comoda per tutti i principali servizi cittadini, proponiamo in vendita ampio appartamento pronto per essere abitato.

La proprietà si sviluppa su una superficie di 130 mq , arricchita da 87 mq di terrazzi vivibili, ideali per chi desidera vivere la casa anche all’aperto, in totale privacy e comfort.

L’ingresso si apre su un luminoso soggiorno con affaccio diretto su uno splendido terrazzo di 55 mq che prosegue fino alla cucina abitabile .

Un disimpegno separa la zona notte, composta da due camere matrimoniali con accesso a un secondo terrazzo di 32 mq, e da due comodi servizi .

Completano la proprietà : una cantina , due box singoli, ed un solaio ideale come spazio di deposito aggiuntivo.

Olgiate Olona | BUON GESU | € 199.000,00 | 130m²

CORSO SEMPIONE 24

annuncio numero: 320

Caratteristiche principali:


  • Contratto: Vendita
  • Tipo Immobile: Appartamento
  • Locali: 3
  • Stato Immobile: OTTIMO
  • Anno: 1989
  • Piano: 1
  • Piani Edificio: 5
  • Bagni: 2
  • Box: Doppio
  • Terrazzi: Si
  • Cantina: Si
  • Solaio: Si
  • Aria Condizionata: Si
  • Ascensore: Si
  • Portineria: Si
  • Spese: € 167,00 mese
  • Riscaldamento: Autonomo
Classe energetica

D.L. 192 del 19/08/05

  • E
  • kWh/m2a: 127.08

Per Maggiori informazioni su questo annuncio Contattateci: