Olgiate Olona TRILOCALE CON TERRAZZO DI 50 MQ

OLGIATE OLONA - ZONA BUON GESU

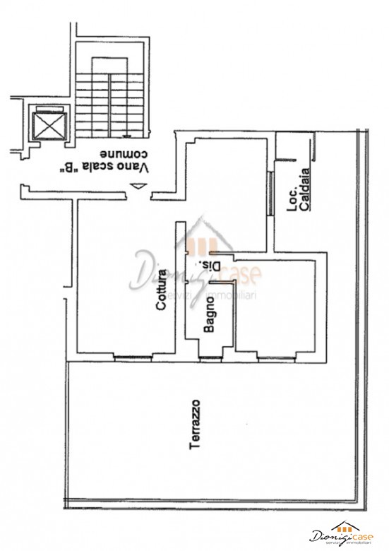
Nel cuore della zona Buon Gesù, a due passi dai principali servizi, a pochi minuti dalla stazione di Castellanza e in posizione comoda per raggiungere rapidamente Busto Arsizio, proponiamo in vendita un accogliente appartamento di 76 mq composto da tre locali più servizi con terrazzo di 50 mq.
A completare la proprietà troviamo un comodo box singolo, cantina e solaio.
L'appartamento è dotato di tapparelle elettriche e tende da sole.
Una soluzione completa, pronta da abitare, perfetta per giovani coppie, piccoli nuclei familiari o per chi cerca un appartamento con un grande spazio esterno in una zona ben servita.

Olgiate Olona | BUIN GESU | € 139.000,00 | 76m²

CORSO SEMPIONE 24C

annuncio numero: 308

Caratteristiche principali:


  • Contratto: Vendita
  • Tipo Immobile: Appartamento
  • Locali: 3
  • Stato Immobile: OTTIMO
  • Anno: 1989
  • Piano: 1
  • Piani Edificio: 4
  • Bagni: 1
  • Box: Singolo
  • Terrazzi: Si
  • Cantina: Si
  • Solaio: Si
  • Ascensore: Si
  • Spese: € 108,00 mese
  • Riscaldamento: Autonomo
Classe energetica

D.L. 192 del 19/08/05

  • D

Per Maggiori informazioni su questo annuncio Contattateci: